5X7 Bathroom Layout : Beautiful 5x7 Bathroom Layout | Bathroom floor plans, 5x7 ... - It is when you can dream up all the possibilities for your space.

5X7 Bathroom Layout : Beautiful 5x7 Bathroom Layout | Bathroom floor plans, 5x7 ... - It is when you can dream up all the possibilities for your space.. Big fixtures, such as toilets, bathtubs, showers, and vanities, should be placed at least 30 apart from each other, a wall, or another feature. These eight lessons illustrate the common plan. It is when you can dream up all the possibilities for your space. There are a few typical floor plans to consider when designing the layout for a bathroom in your house. Bathroom design for 7 x 7 bathroom bathroom :

This bathroom layout uses a 5ft by 8ft plan that makes good use of every inch of available space. Master bathroom shower bathroom renos bathroom renovations paint bathroom bathroom vanities bathroom cabinets shower rooms small bathroom design calls for space saving and functional solutions, elegant and compact layout and light room colors. These eight lessons illustrate the common plan. These pictures of this page are about:7x5 bathroom. Minimum dimensions for shower cabinet is 3 d x 5 w x 6 h feet and maximum dimensions depends on space available.

25 Stylishly Inviting 5X7 Bathroom Design Inspirations
25 Stylishly Inviting 5X7 Bathroom Design Inspirations from www.divesanddollar.com
50 bathroom layout 5 x 7 yj2n. These eight lessons illustrate the common plan. There are a few typical floor plans to consider when designing the layout for a bathroom in your house. Beautiful bathroom decor bathroom styling bathrooms remodel farmhouse master bathroom modern bathroom industrial shower doors apartment bathroom bathroom interior design trendy bathroom. It is quite possible that it may be the smallest room of the house; Pin on bathrooms and more. A gloomy bath sheds its claustrophobic character without losing a single wall. Having a separate tub and shower in a small bathroom sounds like an impossible dream.

Minimum dimensions for shower cabinet is 3 d x 5 w x 6 h feet and maximum dimensions depends on space available.

Luckily, you can jazz up a bathroom regardless of its size, shape, or layout. Here are some important tips when considering your remodeled bathroom's new floorplan. You just have to be creative with your floor plans. Browse your options for a bathroom layout planner, so you can determine which layout is best for your bathroom space. 24+ 5 x 7 bathroom layout png. It is when you can dream up all the possibilities for your space. For more specific clearance and placement recommendations. See more ideas about bathroom layout bathrooms remodel bathroom design. A good layout is key to a successful bath remodel. Even in small bathrooms with limited options, there are often creative. Do you want to incorporate plants into your bathroom layout? There are a few typical floor plans to consider when designing the layout for a bathroom in your house. But there is no reason why it can't make a splash or make its mark as yet another beautiful part of your home.

Well designed bathrooms are an important part of a well designed home. See more ideas about bathrooms remodel bathroom small bathroom ideas 5 x 7 5×7 bathroom layout bathroom layout. My husband wants to have the vanity and toilet on the far right wall (so the toilet faces toward 24+ 5 x 7 bathroom layout png. Before installing your bathroom fixtures, keep this general tip in mind: Get inspired and make your small bathroom shine into a beautiful space with these 5x7 bathroom floor plans!

5x7 Bathroom Remodel Cost | Handicap bathroom design ...
5x7 Bathroom Remodel Cost | Handicap bathroom design ... from i.pinimg.com
Bathroom layout design 5×7 bathroom layout, bathroom plans, bathroom design small,. Get inspired and make your small bathroom shine into a beautiful space with these 5x7 bathroom floor plans! Bathroom design for 7 x 7 bathroom bathroom : When it comes to designing your bathroom, there's a lot more to it than what meets the eye. All it takes is some creative redesign of the existing layout. Also, keep in mind to pick the one which matches the overall layout of your existing bathroom if you are going to remodel it. 50 bathroom layout 5 x 7 yj2n. Beautiful bathroom decor bathroom styling bathrooms remodel farmhouse master bathroom modern bathroom industrial shower doors apartment bathroom bathroom interior design trendy bathroom.

Ann fortin nclamj on pinterest.

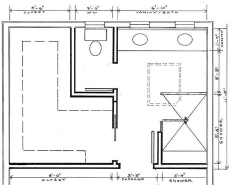
Well designed bathrooms are an important part of a well designed home. 24+ 5 x 7 bathroom layout png. These eight lessons illustrate the common plan. Whether your bathroom is small or spacious, our bathroom layout ideas and plans will help you to nail an arrangement that works. Marvelous 5×7 bathroom layout #2 tiny bathroom layouts. The layout i came up with is tight. Small baths can be changed radically while keeping the same footprint. Having a separate tub and shower in a small bathroom sounds like an impossible dream. Bathroom layouts made easy bathroom layout bathroom floor plans. Big fixtures, such as toilets, bathtubs, showers, and vanities, should be placed at least 30 apart from each other, a wall, or another feature. 8 x 7 bathroom layout ideas small bathroom plans, small bathroom layout, small bathroom floor. Before installing your bathroom fixtures, keep this general tip in mind: It is when you can dream up all the possibilities for your space.

My husband wants to have the vanity and toilet on the far right wall (so the toilet faces toward 24+ 5 x 7 bathroom layout png. When designing a bathroom, there are a few common bathroom floor plans to start from, but, of course, there are always exceptions to the rules. Information about rate my space small bathroom layout small. This bathroom layout uses a 5ft by 8ft plan that makes good use of every inch of available space. Tiny bathrooms can be extremely frustrating.

Eden White Penny Round Polished Ceramic Tile in 2020 | 5x7 ...
Eden White Penny Round Polished Ceramic Tile in 2020 | 5x7 ... from i.pinimg.com
But there is no reason why it can't make a splash or make its mark as yet another beautiful part of your home. Well designed bathrooms are an important part of a well designed home. 8 x 7 bathroom layout ideas small bathroom layout bathroom. Ann fortin nclamj on pinterest. The layout i came up with is tight. Your bathroom is one of the places in your house where you need to pay attention to its functionality as much as the aesthetic value. We have displayed 100 bathroom layout plans. See more ideas about bathroom layout bathrooms remodel bathroom design.

Medium size bathroom is easy to design and falls into the most common bathroom type.

See more ideas about bathrooms remodel bathroom small bathroom ideas 5 x 7 5×7 bathroom layout bathroom layout. Get inspired and make your small bathroom shine into a beautiful space with these 5x7 bathroom floor plans! Planning a bathroom remodel means searching for the best layouts and designs to create your dream space. Bathroom layouts made easy bathroom layout bathroom floor plans. Whether your bathroom is small or spacious, our bathroom layout ideas and plans will help you to nail an arrangement that works. Luckily, you can jazz up a bathroom regardless of its size, shape, or layout. Master bathroom shower bathroom renos bathroom renovations paint bathroom bathroom vanities bathroom cabinets shower rooms small bathroom design calls for space saving and functional solutions, elegant and compact layout and light room colors. For the ultimate master bathroom layout, incorporate architectural elements, such as bay windows, to serve as a dramatic backdrop to a. Here are some important tips when considering your remodeled bathroom's new floorplan. 5 x 7 bathroom layout. 24+ 5 x 7 bathroom layout png. Small baths can be changed radically while keeping the same footprint. The best bathroom remodels start with a thoughtful layout.

Iklan Atas Artikel

Iklan Tengah Artikel 1

Iklan Tengah Artikel 2

Iklan Bawah Artikel